SIEGE SOCIAL APSYS



Maîtrise d'ouvrage
Programme
Adresse
Mission
Livraison
Surface plancher
Surface terrain
Montant travaux HT
Décorateur intérieur
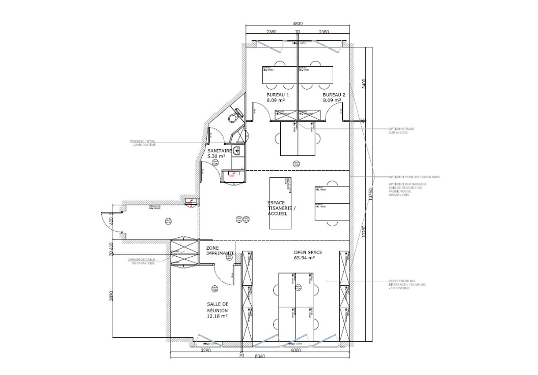
Le projet porte sur la rénovation d’un siège social, pour lequel nous avons assuré le suivi d’exécution des travaux. L’objectif principal consistait à repenser l’organisation interne afin d’améliorer la fonctionnalité, la qualité d’usage et l’accueil des collaborateurs comme des visiteurs. Les espaces communs ont été entièrement requalifiés, offrant désormais un parcours plus fluide et une identité intérieure cohérente. Un open space lumineux a été créé pour favoriser le travail collaboratif, complété par un nouvel espace d’accueil pensé comme un lieu ouvert, clair et convivial. Le programme intègre également la création de bureaux individuels, répondant à des besoins de confidentialité et de concentration, ainsi qu’une salle de réunion équipées pour des usages variés. Une salle de repos chaleureuse, conçue comme un véritable lieu de détente, vient enrichir l’ensemble et améliorer le confort quotidien des utilisateurs. Grâce à un suivi de chantier rigoureux, les travaux ont été menés dans le respect des intentions architecturales et des attentes du maître d’ouvrage, aboutissant à un siège social plus fonctionnel, accueillant et adapté aux modes de travail contemporains.
Nous concevons des espaces qui inspirent, améliorent la vie et transforment le travail. Du premier croquis à la livraison, faisons naître vos projets, ensemble.