RESIDENCE LES DAHLIAS




Maîtrise d'ouvrage
Programme
Adresse
Mission
Livraison
Surface plancher
Surface terrain
Montant travaux HT
Décorateur intérieur
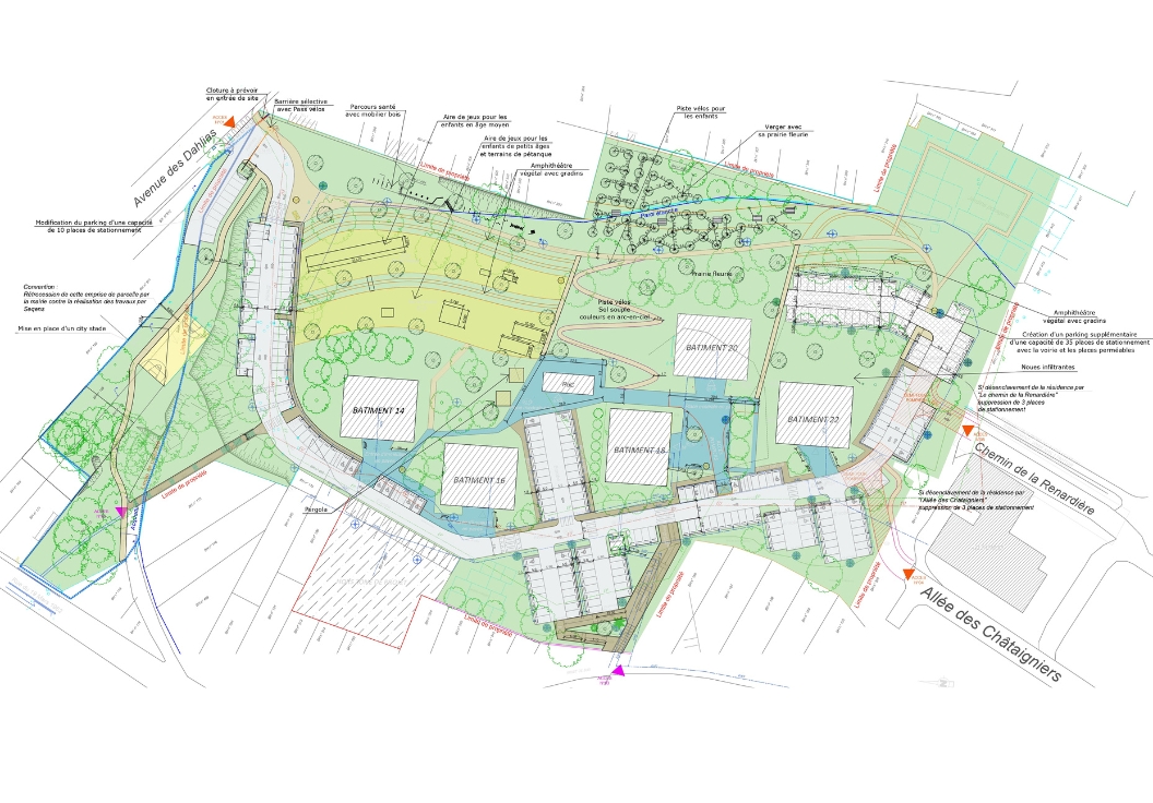
Le projet consiste en la requalification complète des espaces extérieurs d’une résidence de logements sociaux, avec pour objectif de créer un cadre de vie plus qualitatif, apaisé et adapté aux usages des habitants. L’intervention redessine l’ensemble des circulations et des espaces verts afin de recomposer un cœur de site plus lisible, plus accueillant et plus durable. La route principale est réorganisée pour améliorer la sécurité, la fluidité des déplacements et l’accès aux bâtiments. Autour de cette nouvelle trame viaire, de vastes zones paysagères sont restructurées et renaturées. Le projet prévoit la création d’un parcours santé en bois, d’une piste vélo destinée aux enfants, ainsi que de plusieurs aires de jeux offrant une diversité d’activités intergénérationnelles. Un amphithéâtre végétal, pensé comme un espace de rencontre et d’animation, complète l’ensemble et devient un véritable lieu de sociabilité pour les habitants. Les entrées des immeubles font l’objet d’une requalification forte : de grandes places minérales sont aménagées et mises en valeur par des plantations généreuses, intégrant vergers, prairies fleuries et zones d’ombre. Ces seuils paysagers renforcent l’identité des bâtiments tout en offrant des espaces d’attente, de discussion et de détente. La démarche de conception s’est inscrite dans un processus de concertation active avec les résidents. De nombreuses réunions publiques ainsi que des promenades commentées sur site ont permis de recueillir attentes, usages et sensibilités, faisant du projet une réponse collective et partagée.
Nous concevons des espaces qui inspirent, améliorent la vie et transforment le travail. Du premier croquis à la livraison, faisons naître vos projets, ensemble.