CMG SPORT CLUB




Maîtrise d'ouvrage
Programme
Adresse
Mission
Livraison
Surface plancher
Surface terrain
Montant travaux HT
Décorateur intérieur
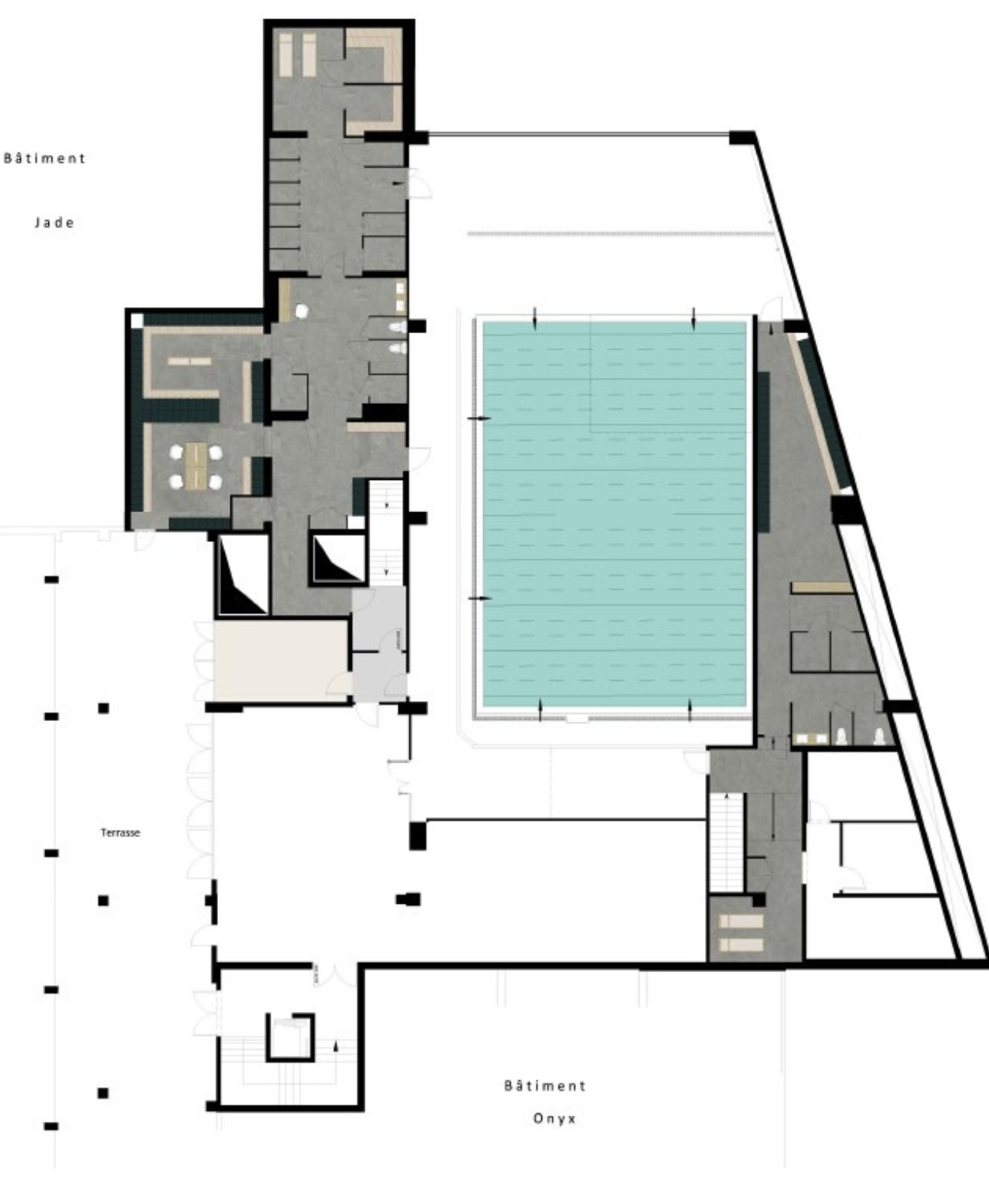
Ce projet s’inscrit dans un partenariat étroit avec la maîtrise d’ouvrage pour la rénovation et l’aménagement de plusieurs salles de sport implantées à Paris. Notre mission a porté à la fois sur les études préalables et sur le suivi d’exécution des travaux, assurant la cohérence architecturale et fonctionnelle de l’ensemble des interventions. L’objectif principal consistait à mettre aux normes les équipements existants tout en transformant en profondeur les espaces intérieurs afin d’accueillir une activité sportive exigeante. Les aménagements ont été conçus pour optimiser au mieux les surfaces disponibles, en intégrant de vastes salles dédiées aux cours collectifs, des zones techniques adaptées et un parcours utilisateur fluide, depuis l’accueil jusqu’aux vestiaires puis vers les espaces de pratique. Chaque projet a été développé en tenant compte des contraintes spécifiques liées à l’exploitation d’une salle de sport : gestion des flux, qualité acoustique, ventilation, sécurité et confort des usagers. Une attention particulière a été portée à la lisibilité des circulations et au traitement des ambiances pour offrir des espaces accueillants, dynamiques et adaptés à la diversité des pratiques. Grâce à un suivi de chantier rigoureux et une coordination constante avec la maîtrise d’ouvrage, les rénovations ont permis de créer des équipements modernes, performants et fonctionnels, répondant pleinement aux attentes des utilisateurs et aux standards actuels du secteur sportif.
Nous concevons des espaces qui inspirent, améliorent la vie et transforment le travail. Du premier croquis à la livraison, faisons naître vos projets, ensemble.