APF-MONTARGIS





Maîtrise d'ouvrage
Programme
Adresse
Mission
Livraison
Surface plancher
Surface terrain
Montant travaux HT
Décorateur intérieur
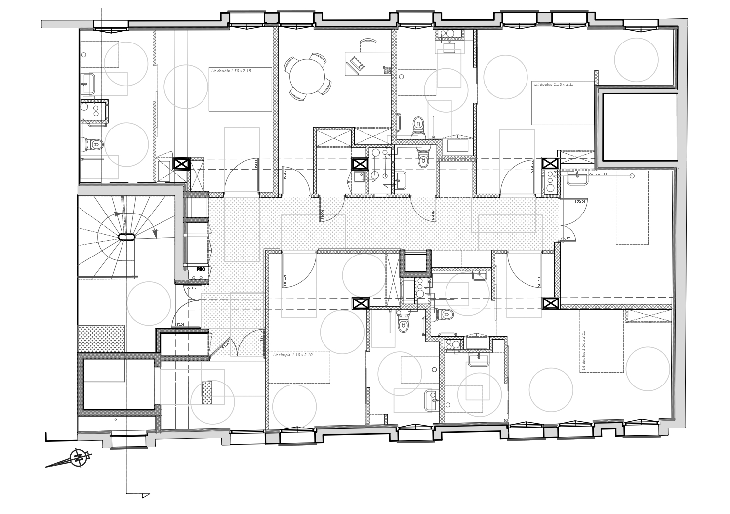
Le projet consiste en la réhabilitation complète d’un bâtiment existant afin d’y créer une structure d’accueil destinée à des personnes en situation de handicap. L’intervention vise à offrir un cadre de vie sécurisant, confortable et chaleureux, pensé pour favoriser l’autonomie tout en répondant aux besoins spécifiques d’accompagnement et de soins. L’aménagement prévoit la création de dix unités de vie, chacune composée d’une chambre et d’une salle de bain entièrement accessibles. Afin que chaque résident puisse véritablement s’approprier son espace, les chambres bénéficient de finitions intérieures distinctes : jeux de couleurs, matériaux et ambiances variées permettant d’affirmer une identité singulière pour chaque lieu de vie. L’objectif est de dépasser la simple fonctionnalité pour proposer un environnement personnalisé et apaisant. Des espaces communs viennent compléter l’organisation des unités : une tisanerie conviviale, des lieux de rencontre et de partage, ainsi que des locaux équipés pour accueillir le personnel soignant dans de bonnes conditions. Ces espaces favorisent à la fois le lien social entre les résidents et la fluidité des interventions médicales. Le rez-de-chaussée du bâtiment est dédié aux bureaux liés à l’activité de la structure, permettant une gestion administrative et médicale efficace tout en préservant la tranquillité des espaces de vie à l’étage. La réhabilitation transforme ainsi le bâtiment en un lieu inclusif et attentif, conçu pour offrir à chaque résident un vrai “chez-soi”, tout en garantissant un accompagnement adapté dans un cadre moderne, sécurisé et respectueux des individualités.
Nous concevons des espaces qui inspirent, améliorent la vie et transforment le travail. Du premier croquis à la livraison, faisons naître vos projets, ensemble.